Image

Hoàng Huy New City

Hoàng Huy New City Thủy Nguyên được xây dựng với định hướng mang đến sự tiện ích, sang trọng và đẳng cấp cho khách hàng. Các căn hộ đảm bảo được tính thông thoáng, hiện đại nhưng vẫn tối ưu được công năng sử dụng và tất cả các căn hộ đều tràn ngập ánh sáng tự nhiên, dự án Hoàng Huy New City Bắc Sông Cấm hứa hẹn sẽ là một không gian sống lý tưởng cho cộng đồng cư dân tại nơi đây.

  • Tên dự án: Hoang Huy New City
  • Chủ đầu tư: Tập đoàn tài chính Hoàng Huy
  • Địa chỉ: Xã Tân Dương & Dương Quan, Huyện Thuỷ Nguyên, Hải Phòng
  • Loại hình phát triển: Nhà liền kề, shopehouse, biệt thự, chung cư
  • Tổng diện tích: 65 ha
  • Tổng chi phí đầu tư: 20000 tỷ đồng
Image
Kiến tạo mái ấm gia đình
Hoàng Huy New City Thủy Nguyên

Vị trí đắc địa

Khu Đô Thị Hoàng Huy New City Thuỷ Nguyên nằm ở trung tâm Bắc Sông Cấm, trên trục đường chính từ cầu Hoàng Văn Thụ đi xuống – đường Đỗ Mười khoảng 3km. Đây được coi là một vị trí đắc địa bậc nhất tại Hải Phòng. Tiềm năng tăng giá rất tốt khi Khu đô thị Bắc Sông Cấm được quy hoạch đồng bộ với lòng đường lên đến 90m với 14 làn xe chạy; trung tâm hành chính – chính trị của thành phố sẽ chuyển sang đây. Cư dân ở dự án sẽ dễ dàng kết nối đến trung tâm thành phố qua cầu Hoàng Văn thụ (chỉ 5 phút đi xe). Ngoài ra, Hoàng Huy New City không phải là dự án duy nhất của Hoàng Huy Group tại thị trường Thuỷ Nguyên, tập đoàn Hoàng Huy con có Khu đô thị Hoàng Huy Green River có quy mô không kém với 62 ha bên xã Hoa Động.

Vị trí dự án
Vị trí dự án
Hoàng Huy New City Thủy Nguyên

Hệ thống tiện ích đồng bộ đẳng cấp

Khu đô thị Hoàng Huy New City Bắc Sông Cấm không chỉ chú trọng tới không gian quy hoạch, kiến trúc và hạ tầng để tạo nên một đô thị sinh thái hoàn hảo và đẳng cấp mà còn tạo lập giá trị của riêng mình bằng việc hình thành hệ thống tiện ích, phúc lợi cộng đồng và dịch vụ quản lý theo chuẩn quốc tế… để người dân có cơ hội thụ hưởng những tinh hoa của cuộc sống hiện đại.

Tiện ích nội khu

  • Công viên cây xanh
  • Khu vui chơi trẻ em
  • Bãi đỗ xe
  • Trung tâm thương mại siêu thị
  • Khách sạn, văn phòng
  • Trung tâm y tế
  • Hệ thống trường học liên cấp
  • Hệ thống an ninh 24/7

Tiện ích ngoại khu

  • Cách công viên Central Park 1,5 km
  • Cách Vin Pearl Vũ Yên 2km
  • Cách trung tâm thành phố 3km
  • Cách sân bay Cát Bi 8km

Quy hoạch và phát triển đồng bộ trên tổng diện tích khoảng 88 ha thuộc xã Tân Dương, huyện Thủy Nguyên, dự án Hoàng Huy New City được xây dựng trên ý tưởng một đô thị kiểu mẫu hiện đại, cộng đồng dân cư cao cấp, môi trường sống văn minh, lý tưởng khi quy tụ hàng loạt các tiện ích dịch vụ chất lượng như:

Tiện ích
Tiện ích
Tiện ích
Tiện ích
Hoàng Huy New City Thủy Nguyên

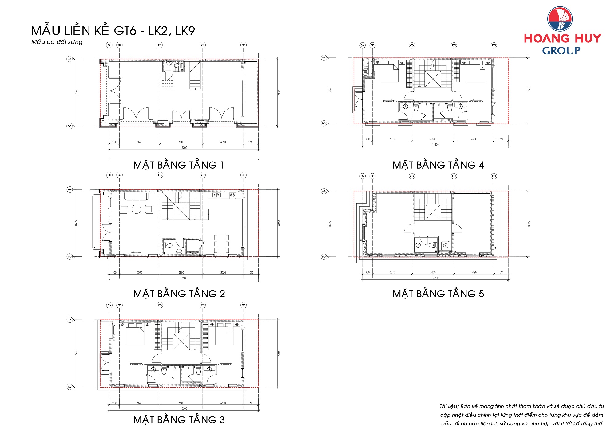
Mặt bằng dự án

Hoàng Huy New City được thiết kế hài hòa các mảng xanh lớn xen kẽ trong từng không gian sống và giải trí. Chủ đầu tư đã không ngần ngại hy sinh tiện ích xây dựng để kiến tạo một không gian rộng rãi, xanh mát cho cư dân với khoảng không gian xanh lớn trên đầu người. Khi sống tại Hoàng Huy New City, các chủ nhân sẽ được vùng vẫy giữa nhiều mảng không gian khác nhau chứ không phải ngập trước mắt là bê tông cốt thép sừng sững như nhiều công trình khác.

Mặt bằng tổng thế

Mặt bằng Mặt bằng
Hoàng Huy New City Thủy Nguyên

Chính sách bán hàng mới nhất

  • Mức dư nợ vay lên tới 70% giá trị nhà ở
  • Mức dự nợ được CĐT hỗ trợ lãi suất lên tới 65% tổng giá trị căn hộ đã bao gồm VAT
  • Lãi suất và thời gian hỗ trợ vay vốn LS 0% trong thời gian tối đa 18 tháng
  • Ân hạn nợ gốc trong thời gian hỗ trợ lãi xuất
  • Phí trả nợ trước hạn 0% trong thời gian HTLS
Chính sách
Chính sách
Chính sách
Chính sách
Chính sách
Chính sách
Chính sách
Chính sách
Hoàng Huy New City Thủy Nguyên

Tiến độ dự án

image

Đăng ký nhận bảng giá